HomePage
ABOUT
Features
Material Take-offs
Shop Drawings
Cut List
Pricing Shop Drawings
Pricing Material Take-off
Pricing Cut Lists
Forms
Shop Drawing Checklist
Material Take-off Quote Form
Contact
EH
Drafting
What level of detail do you need?
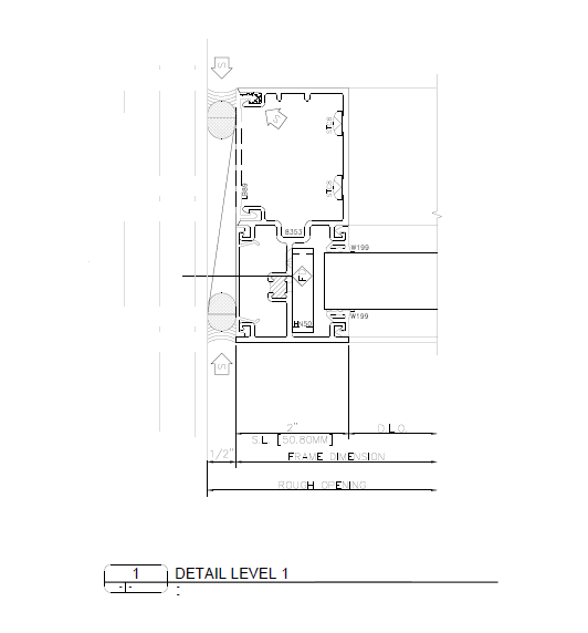
Level 1 Drawings
Level 2 Drawings
Level 3 Drawings
Level 1 Shop Drawings
Generic substrates (surrounding conditions)
System shapes
Drawn for companies to field verify their own rough opening dimensions
Can you quote me Level 1 Shop Drawings?
Level 2 Shop Drawings
More specific detail that are not meant for engineering reviews
System shapes
Drawn for companies who want to field verify/ or guarantee the rough opening dimensions
Can you quote me Level 2 Shop Drawings?
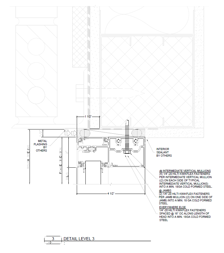
Level 3 Shop Drawings
Details intended for engineering reviews
System shapes
Drawn for companies who will guarantee rough opening dimensions
Can you quote me Level 3 Shop Drawings?